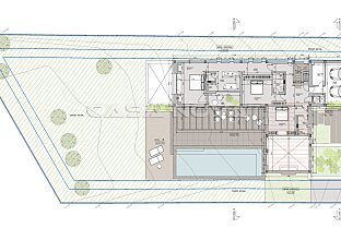
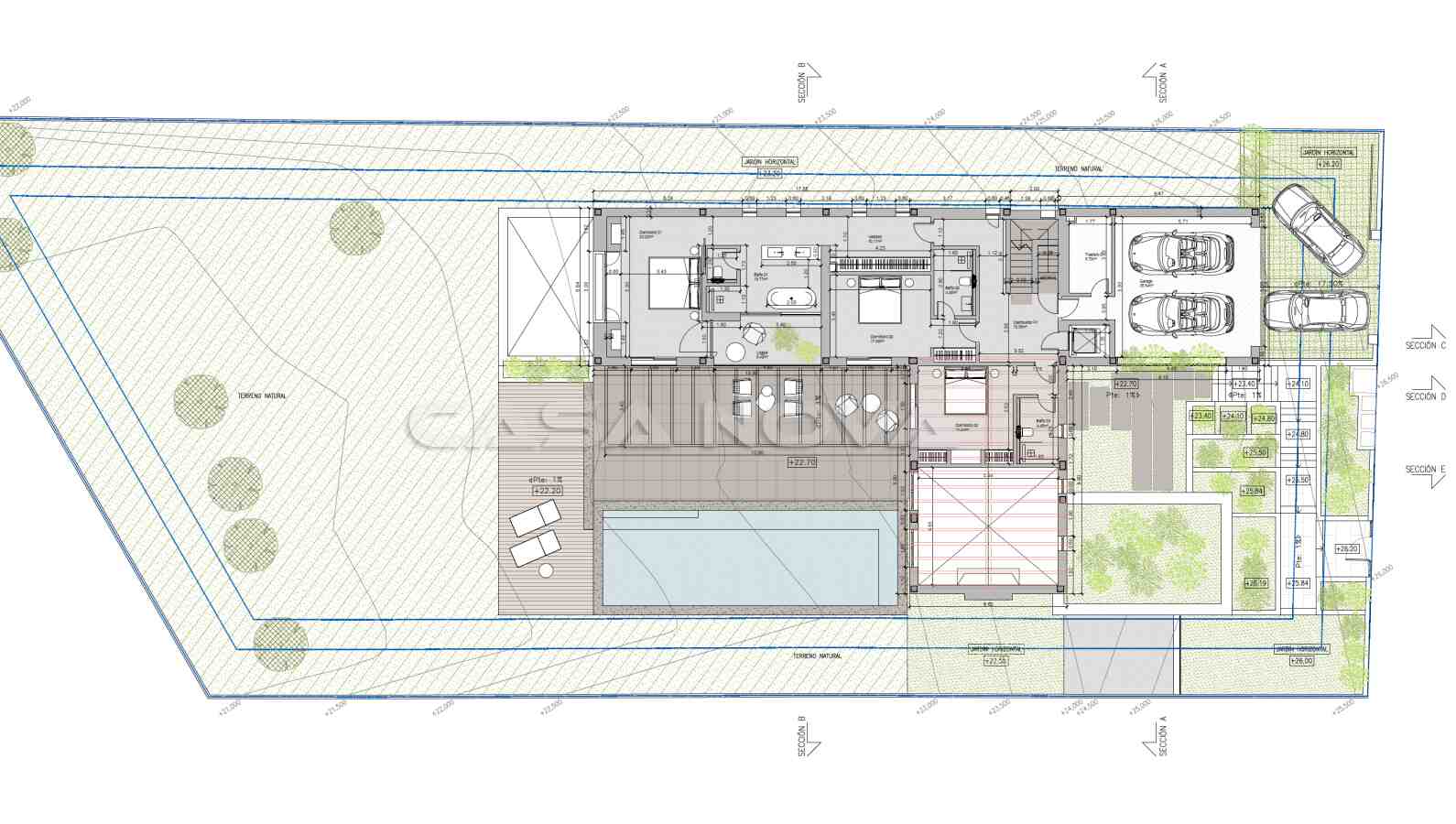
Real estate Mallorca: This prime building plot is located in a very popular and quiet residential area of Nova Santa Ponsa, in the southwest of the island of Mallorca. A building permit for a modern villa project is already in place. In addition, a completely finished structural shell is already available. In addition to the purchase price, 21% VAT is payable. However, there is no land transfer tax.
The fully developed building plot has a surface area of approximately 1,369 m2. According to the building regulations of the municipality of Calviá, 35% of this area can be built on, which equates to 479 m2. Realise your dream of owning your own home in Mallorca. This villa project offers a spectacular location with a sea view and views of the countryside. If you have any questions about this villa project in Mallorca, please contact our sales team at Casa Nova Properties. we will be happy to advise you.
The popular holiday resort of Santa Ponsa offers international and Mallorcan restaurants and bars, luxurious marinas, popular golf courses, fine sandy beaches and much more. You are only a few walking minutes away from Mediterranean life by the sea. The capital of the island, Palma de Mallorca, and the old town are only about 20 minutes away. The international airport connects you to all major European cities throughout the year and can be reached in approximately 25 minutes.
Property in Mallorca is a valuable investment in your future. This building plot with villa project is presented to you by your estate agent in Mallorca in the south-west of the island, Casa Nova Properties in Santa Ponsa. There are no agency fees for the buyer.


